.
Nei paesi civili i progetti che concorrono a un appalto vengono fatti conoscere al pubblico che almeno potrà giudicare.
Ormai l’appalto è stato fatto.
L’Amministrazione Comunale di Venafro dice che nell’ex Molino della Corte, volgarmente detto “Palazzina Liberty”, sarà realizzato un teatro.
A noi hanno insegnato che un teatro è un teatro!
.
A Venafro i cittadini dovrebbero essere informati su come l’Amministrazione Comunale spenderà il Milione e duecentomila euro (Due miliardi di lire di una volta) e come sarà il teatro che i Venafrani vedranno (con il binocolo).
.
Questo è il nostro progetto che non è stato considerato meritevole di aggiudicazione.
Ne prendiamo atto!
E’ firmato da
Luigi Valente, architetto,
Rocco Peluso architetto,
Franco Valente architetto
Vincenzo Castaldi, ingegnere,
Francesco Gazerro, ingegnere
Antonio D’Errico, geologo,
Giambattista Di Chiaro, consulente artistico
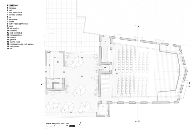
La sala polivalente per conferenze e teatro amatoriale
Previsione
Un palco attrezzato di camerini, servizi e tutto quanto necessario per fare spettacoli amatoriali
Una platea e una galleria con un totale di circa 200 posti.
.
Nella progettazione si è tenuto conto di una delle esigenze principali della Città che è sprovvista di una sala utilizzabile per convegni e conferenze e che fosse pure adattabile ad attività teatrale amatoriale per le quali non sono necessarie attrezzature particolarmente complesse.
Si è considerato che, qualunque sia l’intervento strutturale da effettuare, si deve procedere al totale rifacimento dei solai e alla predisposizione di un apparato statico in grado di permettere un uso pubblico nel pieno rispetto della normativa sismica e di sicurezza, si è ritenuto opportuno utilizzare tale circostanza per realizzare all’interno del lato orientale una Sala Polivalente adatta a conferenze e attività di teatro amatoriale capace di ospitare poco meno di 200 spettatori.
Tale sala si articola con una Platea al piano terra e una Galleria al primo piano, opportunamente collegate con scale a norma e ascensore per i portatori di disabilità.
Un ampio foyer, attrezzato opportunamente con servizi igienici e le attrezzature minime per la ricezione degli utilizzatori della sala, costituisce l’ingresso principale dal piano terra, in collegamento diretto con Corso Lucenteforte.
Particolare cura nell’arredo esterno con la sistemazione dello spazio di accesso che, grazie al particolare contesto paesaggistico della Fontana delle Quattro Cannelle e delle fontane storiche da una parte e dello specchio d’acqua dell’antica Pescara dall’altra, diventa luogo logicamente predestinato ad ospitare mostre ed esposizioni di arte all’aperto.
La scelta progettuale è stata preceduta da una indagine sulle attività teatrali amatoriali consultando le associazioni culturali che si occupano specificatamente di tale settore esi è verificato che la dimensione della sala risponde precisamente alle esigenze attuali di una città delle dimensioni di Venafro che è particolarmente sensibile soprattutto verso piccoli spettacoli di interesse locale.
Particolare attenzione è stata posta alla soluzione architettonica perché l’uso di strutture metalliche a vista permette una fruibilità totale dello spazio volumetrico interno conseguito, senza alcuna modifica della scatola muraria esterna, e la possibilità di utilizzare le medesime strutture per tutti quegli apparati tecnici che caratterizzano l’utilizzazione di sale polivalenti. Eguale cura nella previsioni di elementi necessari per il miglioramento delle capacità anecoiche e per garantire una perfetta visibilità, oltre che accessibilità.
Sale e salette per attività di formazione culturale
Al piano terra, con possibilità di ingresso autonomo ma comunque collegato con il foyer della sala polivalente, si articolano le sale le salette che per la particolare distribuzione sono utilizzabili singolarmente o insieme per attività di formazione occasionale o programmata.
Centro servizi turistici per dare e ricevere anche informazioni e Locali per attività espositive (Piccole mostre fotografiche e grafiche).
Alle salette è collegato l’Ufficio Turistico per dare e ricevere informazioni di carattere generale sulla fruibilità dei Musei e dei luoghi d’arte della città. All’Ufficio Turistico farà capo anche il piccolo spazio museale del piano inferiore, interamente destinato alla esposizione delle macchine elettriche che ancora si conservano, benché meritevoli di restauro, all’interno dell’immobile e a piccole esposizioni fotografiche o artistiche.
Altre funzioni
In un complesso culturale e funzionale così concepito non può mancare un’area destinata alla ospitalità occasionale che molto spesso si traduce in opportunità di lavoro. Al primo piano, in collegamento diretto con la Sala Polivalente, ma nello stesso tempo con accesso assolutamente indipendente, si è previsto di utilizzare un volume di non particolare ampiezza che originariamente era destinato ad ospitare i trasformatori della centralina, per un piccolo Roof garden utilizzabile con regolarità e non solo per le attività che presumibilmente si svolgeranno all’interno del complesso.
Le caratteristiche del Roof-garden sono dettagliatamente illustrate nei grafici e nelle ricostruzioni virtuali.







Lascia un commento