Ancora una volta la prepotenza, l’arroganza e l’indifferenza alle esigenze dei cittadini ha la meglio sulla logica.
AL SINDACO PIACE BRUTTO E INUTILE!
Finalmente possiamo vedere verso quale disastro si avvia la cultura a Venafro.
Gli amanti del teatro, della musica, dello spettacolo finalmente potevano avere un tempio della cultura, invece il Sindaco di Venafro con una commissione ben orientata ideologicamente sta per dare uno schiaffo ai giovani che avevano cominciato a sognare che quialcosa cambiasse.
Ha vinto l’arroganza e la banalità.
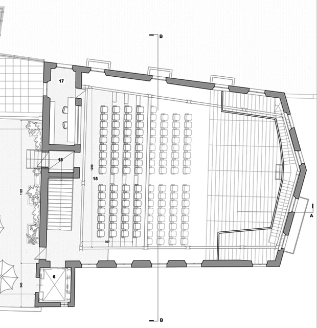
QUESTO E’ IL TEATRO CHE IL COMUNE STA REALIZZANDO IN UNO DEI LUOGHI PIU’ IMPORTANTI DELLA CITTA’
Una sala con 64 posti a sedere.
Ovvero lo squallore a spese della collettività!
Si buttano dalla finestra un milione e duecentomila euro per finalità ideologiche e per il piacere di sperperare soldi pubblici!
Questo, invece, è il teatro che sognavano i Venafrani!








Lascia un commento