Estratto da Franco Valente, S.Vincenzo al Volturno, architettura ed arte, Montecassino 1995
(Con preghiera di citare la fonte in caso di utilizzazione del testo per motivi di studio. Questo articolo è protetto da diritti Creative Commons)

Sulle origini di questo splendido gioiello dell’architettura rupestre benedettina non si ha alcuna notizia precisa, anche se appare evidente che la sua edificazione sia da collegare alla organizzazione delle terre di S.Vincenzo dopo la venuta di Paldo, Tato e Taso nell’VIII secolo (1).
Una serie di complesse sovrapposizioni nel tempo, se da una parte conferma la lunga presenza del monumento nei secoli, d’altra parte rende problematico un riconoscimento delle varie fasi di ampliamento. Un’analisi sistematica di esso non può, però, prescindere dallo studio del luogo ove è sistemato, specialmente se si considera che apparentemente la chiesa è fuori di assi stradali. Nella realtà essa è posta ai limiti di un antico tracciato, fondamentale per il collegamento fra l’abbazia di S. Vincenzo e la Campania (2). Di questo sentiero rimangono consistenti tracce sia a valle che a monte della chiesa e l’importanza è desumibile dalla sua stessa forma, poiché in più punti è scavato nella roccia e presenta una larghezza tale per cui non può essere considerato una semplice mulattiera. La posizione della chiesa, poi, è particolarmente felice per quanto riguarda l’insolazione, infatti, essendo situata sul lato meridionale dello scoscendimento, è assolata in ogni momento della giornata, tuttavia la necessità della sua esistenza è da mettere soprattutto in relazione ai collegamenti continui lungo la dorsale appenninica. Tra le vie della Valle del Volturno, certamente quella che passa per la Madonna delle Grotte era la più frequentata, nonostante l’apparente impervietà del suo tracciato.
E’ naturale, quindi, che il complesso di S. Maria delle Grotte assolvesse anche una funzione di controllo per chi entrava o usciva dal territorio immediatamente circostante la badia. E che la chiesa fosse una tappa obbligata per i pellegrini, oltre che per i viandanti occasionali, è testimoniato dalla presenza della gigantesca immagine di S. Cristoforo, loro protettore, all’interno di essa (3). La scelta del sito, però, non è da collegare solo alla vicinanza della strada, ma anche alla presenza di quella serie di grotte naturali che, caratterizzando la zona, hanno poi determinato il nome stesso della chiesa.
I saggi effettuati attorno alla chiesa (4), nonché la presenza di una serie di attrezzature necessarie per la produzione olearia e vinaria che si ritrovano nelle immediate vicinanze del complesso, fanno, inoltre, ritenere che la chiesa non fosse elemento a sé, quanto invece parte di un complesso monastico più articolato cui era demandato il compito della organizzazione agricola di quella parte di territorio.
Diretta conferma è la grande quantità di elementi architettonici di una certa importanza, quali conci di archi e rocchi di colonnine, che, sebbene disseminati sull’attuale sagrato dopo l’ultimo restauro, testimoniano la antica presenza di ambienti e spazi di una certa consistenza. La stessa conformazione planimetrica della chiesa ci induce a ritenere non solo che vi sia stata una fase di accrescimento del monumento nel tempo, ma anche una successiva, di riduzione rispetto al periodo di maggiore sviluppo, che potrebbe essere individuato nei secoli XIII e XIV. A quest’ultimo secolo infatti risale il documento più antico che attesti l’esistenza di una organizzazione monastica di rilievo presso la chiesa; infatti, una campana del 1331 recuperata da A. Pantoni da Rocchetta Vecchia per essere custodita nel campanile della basilica di S. Vincenzo e dallo stesso Pantoni segnalata nel volume sulle chiese e gli edifici del Monastero di S. Vincenzo al Volturno (5), reca I’epigrafe: FRATER FRANGISCUS DE VULDE REGIA, PRIOR SCE M DE GRIPTIS, cioè Francesco di Valle Regia, priore di S. Maria delle Grotte.

La “Magna Madonna”, la Grande Madonna.
Al 1697 risale invece la descrizione di Innico Caracciolo che la pone inter saxa et vepres (6).
Ottavio Fraia-Frangipane ai primi del XVIII secolo accenna fugacemente al monumento: Tra la Rocchetta e Scapoli vi è una chiesa sotto l’invocazione di S. Maria delle Grotti, che secondo la tradizione e deposizione dei vecchi era un antico monastero, perché si osservano delle stanze, e dormitori, come da un processo del I717, per un taglio di alcune querce (7) .Nel 1874 un altro breve cenno lo troviamo in un articolo di Giuseppe Martino (8) il quale, riprendendo dalla visita di Innico Caracciolo, afferma che la chiesa di S. Maria delle Grotte fu edificata per commodo delle vicine popolazioni, e dove i Rocchettani chieggono il desiderato soccorso nelle malattie, o nella carestia. Grandiosa ed elegante tenuta ai tempi dei Monaci, ora è caduta per metà. Comunque in male stato è divisa in due navi, ed una Cappella. Esistono due dipinti. In una nicchia sottostante all’altare maggiore siede antichissima statua di legno della Vergine col Bambino in braccio, di cui ignorasi l’epoca, volgarmente chiamata Magna Madonna. Dietro del muro dell’altare maggiore esistono dei sepolcri praticati a nicchie nelle pareti, a somiglianza di quelli di Cuma e Baja, ciò che mostra questo luogo essere stato ricoverto di sepolcri.
Nella cennata Chiesa esistono effigie dei Santi Benedetto, Mauro, e Vincenzo. Una volta era molto ricca, perché possedeva fondi in Presensano, Vairano, Cervaro, S. Vittore, S. Elia, Rionero, Alfidena, Isernia, ed una vasta tenuta di circa 130 tomoli in Castelnuovo, nel feudo Cerasuolo del Duca Marotta. Attualmente un Eremita, Francesco Pontarelli la custodisce. La festa di questa Madonna si celebra nel 22 agosto di ciaschedun anno, col concorso di molta gente, praticandosi pure un mezzo mercato di cocomeri, uva, ed altre frutta. E’ bello vedere dopo la S. Messa, sparsi per la campagna i forestieri, sotto le grotti o alberi, sollazzarsi tra Cerere e Bacco, per cortesia dei cittadini, allietati pure dai concerti della Banda musicale, la quale, spesso spesso, fa echeggiare coi suoi suoni briosi quella valle amena…
Per quanto riguarda il portale principale, che è sistemato sulla parete laterale a raccogliere il massimo della luminosità, bisogna riconoscere l’utilizzazione di uno schema compositivo di elevata raffinatezza pur nella semplicità complessiva. Nessuna importanza per la datazione deve essere data alla epigrafe posticcia che grossolanamente compare sulla mensola: M.C.D.A. – AD XXIII D.F. 1619 FV RIVOTATA ET BIANCHITA; infatti, essa è da riferirsi a quei lavori di rifacimento che nel XVII secolo danneggiarono e distrussero in gran parte il ciclo degli affreschi interni. E’ invece più importante considerare come la particolare composizione si discosti nettamente dal romanico-gotico abruzzese cui sovente, anche se a volte impropriamente, si fa riferimento per l’architettura molisana.
Non vi troviamo infatti la serie di capitelli posti orizzontalmente sulla linea dell’architrave ad accentuare la strombatura verso l’interno, ma piuttosto vi si rivela un linearismo orientaleggiante nel contrasto del vuoto lunetta-portale contro la luminosità della parete.
Le sottili colonne poligonali sembrano, così, tendere, fino ad inarcarla, la cornice superiore, formata da un listello a foglie di acanto, mentre le basi assolvono quasi la funzione di fermaglio.
L’arco superiore poi si incastra su capitelli a crochet di raffinata fattura con foglie di piante grasse terminanti in turgidi boccioli. Ne risulta una tensione centrifuga nelle parti esterne della lunetta ancor più evidenziata dalla applicazione di motivi decorativi multicolori a cerchi e rombi alternati. Inevitabile, perciò, il riferimento ai portali federiciani che, pur collocandosi nella prima metà del Duecento, furono ampiamente diffusi anche alla fine di tale secolo ed oltre.
Poco rimane della pittura compresa nella lunetta, ma, pur essendo impossibile qualsiasi apprezzamento stilistico, vi si riconosce la figura centrale della Madonna con bambino ed ai lati due angeli ceroferari. Pregevole il materiale usato; infatti, oltre alla pietra vi compare, soprattutto nelle colonne, alabastro del Volturno (9).
L’interno
Non appena superato il prezioso portale non si può non rimanere suggestionati dalla particolare articolazione spaziale dell’interno che si dilata in un’aula principale caratterizzata da una pianta ad assi ortogonali, per naturale conseguenza della conformazione del sito. Un asse trasversale, regolarizzato da una serie di interventi architettonici succedutisi dal XIII al XIV secolo, costituisce la direttrice della navata principale che si stende parallelamente alla parete rocciosa cui è aggregato l’intero complesso. Un asse longitudinale, invece, individua uno spazio che apparentemente è una dilatazione naturale realizzata per guadagnare superficie per i fedeli, ma che in realtà è una vera e propria direttrice visiva verso la parte recondita della chiesa dove si sviluppa un ambiente addossato a quella parete di travertino che ne costituisce non solo la limitazione ma anche l’origine. A conclusione di questo secondo asse si apre una cavità naturale (che potrebbe essere considerata la parte terminale dell’originario e più antico impianto della chiesa) successivamente modificata e regolarizzata in coincidenza dei grandi ampliamenti del basso medioevo, quando la piccola grotta fu adattata a luogo di sepoltura, come lascia chiaramente intuire la pregevole arca in forma gotica che ancora sopravvive.

S. Maria delle Grotte prima e dopo i restauri
Il portale, dunque, pur conservando un rapporto diretto con la parte più antica della chiesa, introduce direttamente in quella più recente, la cui aula principale si conclude con un presbiterio limitato da un grande arco trionfale gotico e sovrastato da una crociera, anch’essa acuta nel sesto, con costoloni in pietra locale che, intersecandosi al centro su un concio quadrato, si scaricano sulle quattro colonne situate agli spigoli della pianta quadrata.
Particolarmente pregevoli nel complesso i ben conservati capitelli in pietra arenaria con motivi fitomorfici che mediano il rapporto con le murature ogivali, trasferendo anche strutturalmente il peso della copertura sulle esili colonne di alabastro del Volturno che, in forma circolare, poggiano su basi a cuscino le quali appaiono riccamente ricamate dalle naturali striature multicolori, anche se parzialmente nascoste dal pavimento inopportunamente sovrappostovi in sede di restauro. Contemporanei agli affreschi, e comunque del primo Trecento, i motivi decorativi policromi applicati ai costoloni, che contribuiscono in maniera brillante ad arricchire coloristicamente la chiesa.
Sul presbiterio si aprono due ambienti: quello di sinistra, collegato mediante una porta, assolve le funzioni di sagrestia, mentre quello a destra, limitato da un arco, è una vera e propria cappella laterale. Parallelamente alla navata principale si stende una seconda e più piccola aula, interamente affrescata, che è limitata nella parte più interna dalla parete rocciosa ed è separata da un muro longitudinale la cui forma lascia intuire almeno due fasi costruttive riferibili una alla prima chiesa e la seconda ad un ampliamento del XII-XIII secolo.
Un’analisi sommaria, che avrebbe meritato un approfondimento maggiore durante gli ultimi, poco felici, restauri, fa supporre che la parte di muratura più antica sia quella che si affaccia sull’aula principale, mentre quella più recente sarebbe posta verso l’aula più piccola, con funzioni di rinforzo strutturale. Per quanto riguarda la datazione delle varie fasi, come già detto, non si hanno utili informazioni e solo la comparazione stilistica e l’esame delle sovrapposizioni murarie possono esserci d’aiuto.

Gli elementi strutturali non ancora romanici, nella parte delle grotte interne, fanno pensare ad un primo intervento di qualificazione architettonica del naturale carattere rupestre della zona e l’esecuzione non appare indifferente a certe architetture carolinge ed ottoniane il cui ricordo sembra riaffiorare nel tentativo di accennare ad un loggiato con le aperture in parte ricavate nella roccia e in parte di composizione.
Una seconda fase potrebbe essere collegata alla rifioritura dell’abbazia che Angelo Pantoni (10) fa coincidere con la ricostruzione della chiesa di S. Vincenzo, ad opera di Gerardo prima e Benedetto poi, i cui lavori furono completati nel 1115, quando il Papa Pasquale II intervenne alla solenne consacrazione della nuova abbazia. Al XII-XIII secolo dovrebbe dunque essere riferita una ristrutturazione di S. Maria delle Grotte, ma è improbabile che il presbiterio avesse l’attuale impianto. Non è da escludere che l’aula principale si concludesse, come fa osservare Pantoni, con un’abside ad andamento circolare sul tipo di tutti gli altri edifici sacri di S. Vincenzo.
Del resto l’arcone trionfale, a sesto acuto, chiaramente si appoggia sugli affreschi che si stendono sulla parete longitudinale che, come vedremo, certamente non sono anteriori alla seconda metà del XIII secolo. La modifica, o la realizzazione ex novo del presbiterio, terza fase, rappresenta il momento più pregevole di evoluzione architettonica del complesso anche se rimane nell’oscurità la conoscenza dell’edificio monastico nella parte residenziale totalmente scomparsa. Il Ciarlanti (11) riprendendo da un manoscritto dell’archivio della cattedrale di Isernia, riferisce che nel 1349 gli edifici di S. Vincenzo al Volturno furono pressoché distrutti da un disastroso terremoto che destruxit Ecclesiam Sancti Vincentii de Volturno, Monasterium, et omnia Castra Ecclesiae supradictae, in quibus mortui fuerunt venerabiles monachi fratres carnales Abbatis Monasterii praelibati.
Alla seconda metà del XIV secolo, e comunque non prima di esso, deve dunque riferirsi la ristrutturazione dell’edificio in una forma che non è comunque ancora quella attuale.
Altri cambiamenti infatti furono apportati nel tempo anche se nessuno di essi migliorò la qualità architettonica; anzi il pregevole complesso subì tali e tante trasformazioni negative da essere ridotto in condizioni miserevoli. Soprattutto gli affreschi furono violentati quando nel 1619, come orgogliosamente afferma l’epigrafe scalpellata sull’antico portale, la chiesa fu rivotata et bianchita.
Per rifare l’intonaco, infatti, essi furono per l’intera superficie scalfiti con il piccone per garantire l’adesione della nuova malta alla vecchia muratura.
Gli affreschi
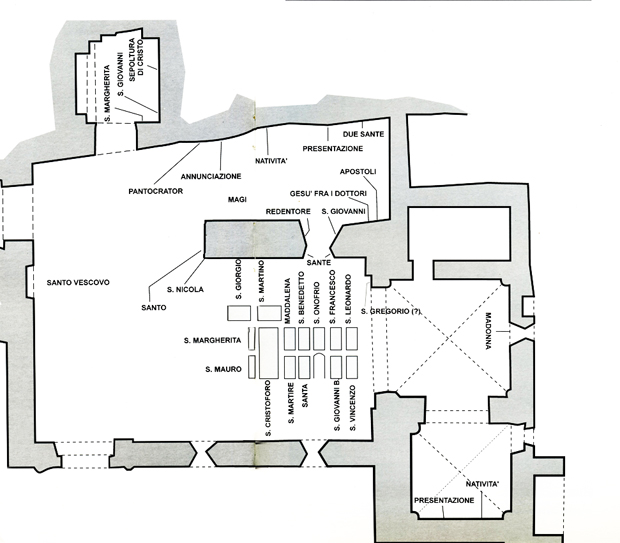
Certamente non furono di un solo autore, né furono eseguiti nella stessa epoca gli affreschi che, annullando le pareti interne della chiesa, ancora esaltano quei significati religiosi che secoli di abbandono e sciagurati interventi manutentivi avevano nascosto a tutti. La iconografia permette una distinzione dei cicli pittorici che possiamo dividere in tre gruppi principali. Gli affreschi rupestri e murali nell’aula piccola con scene della vita di Cristo; quelli dell’aula principale con le rappresentazioni dei Santi; quelli del Presbiterio e della cappella laterale con le rappresentazioni della Madonna.
Anche stilisticamente i tre gruppi possono essere distinti, attribuendo quelli della vita di Cristo ad un’epoca più antica, presumibilmente tra la fine del XIII e l’inizio del XIV secolo. Ai primi del Trecento vanno collocate le raffigurazioni dei Santi, mentre ai primi del Quattrocento le rappresentazioni del presbiterio. Questi affreschi furono pubblicali la prima volta dal Cellucci, con alcune inesattezze sulla interpretazione iconografica, in gran parte già individuate e rettificate da Pantoni prima del recente avvio del risanamento (12).
Le migliorate condizioni di visibilità (anche se non sono state eliminate ancora le cause che producono muffa e condensa sulle pareti) permettono una più chiara lettura dei vari episodi rappresentati e forse una più concreta interpretazione di essi. Sulla parete rocciosa si susseguono su una stessa fila quattro rappresentazioni: L’Annunciazione, i Pastori alla Natività, la Presentazione al Tempio, due Sante.
Nella parte superiore a sinistra è situato il Cristo in trono con due angeli ai lati. Sulla parete di fondo dell’aula piccola è sistemata una serie di Apostoli che si sviluppa nella parte più bassa. Nella fascia intermedia vi sono frammenti di pitture dove si riconosce il piede di una figura in cerimonia, particolare forse di un Giudizio di Cristo.
Nella parte alta si vedono brandelli di difficile lettura che sembrano appartenere ad una Crocifissione. Sulla parete lunga, parallela alla navata principale segue la teoria di Apostoli con quattro figure. Al disopra di essi è la scena di Cristo Bambino fra i Dottori. Al lato, verso destra, in alto, vi è la rappresentazione dell’Adorazione dei Magi.
Che si tratti di opere di epoca angioina non vi sono dubbi, nonostante quelle reminiscenze federiciane (che si avvertono soprattutto nei particolari architettonici) da cui la nuova cultura che si andava creando sotto il governo di Carlo I non riusciva ancora a sganciarsi. Costui troppo preso da problemi militari e soprattutto senza quel forte stimolo che gli poteva derivare da una propria personalità artistica (quale invece dimostrò di avere Federico II) non operò immediatamente profonde trasformazioni nel gusto, tuttavia pose le basi di una nuova ideologia che si riconosce soprattutto nelle conseguenze pratiche determinatesi nell’ambito delle attività religiose. La presenza, anzi lo sviluppo degli ordini Mendicanti che, al contrario di quanto avvenne sotto Federico II, furono protetti e quasi sollecitati ad operare, appare evidente dalla consistente presenza nelle raffigurazioni di quest’epoca dei grandi nomi del nuovo monachesimo ed in particolare proprio di S. Francesco.
La grande importanza che assunse il movimento dei Celestini fondato da Pietro Angelerio (divenuto Papa Celestino V proprio per volere della famiglia angioina) il quale sotto Carlo I fondò, tra gli altri, i conventi di Isernia (1274) e Venafro (1277) è ulteriore conferma dei cambiamenti che erano in atto, in contrasto con la politica degli svevi.
In questo contesto Carlo, nel 1270, emetteva provvedimenti a difesa degli interessi del clero venafrano e successivamente del monastero di S. Vincenzo. Sia la leggenda, immediatamente diffusa, che S. Francesco sia stato il personale fondatore di nuovi conventi nel meridione d’Italia, sia la capillare organizzazione che realmente si diffuse sul territorio del Regno non poterono, però, cancellare preesistenze consolidate non solo sul piano artistico e monumentale, ma anche religioso e culturale. Ciò è giustificato dalla permanenza di impianti longobardi talmente radicati anche nella organizzazione sociale che, a distanza di secoli, essi venivano solo trasformati e adattati alla nuova cultura religiosa.
Le reminiscenze bizantine, che magari si erano affievolite pur rimanendo diffusamente presenti in antiche opere, sembrano essere recuperate per un rilancio attraverso un nuovo linguaggio. Ne consegue una fase di apparente indecisione che da una parte mostra la concretezza della tradizione pittorica locale e dall’altra l’arrivo di nuove correnti artistiche che si insinuano anche in territori almeno apparentemente fuori dei grossi traffici mercantili.
Questo particolare aspetto pare possa cogliersi negli affreschi di S. Maria delle Grotte specialmente comparando le bizantineggianti rappresentazioni della iconostasi con quelli dell’aula interna dove una notevole capacità interpretativa denota collegamenti con quelle correnti artistiche che gli Angioini non solo dalla Francia, ma anche dal centro Italia, avevano cominciato a richiamare. Collegamenti che però, non vogliono necessariamente significare l’assenza di partecipazione locale alle scelte culturali; anzi proprio gli impianti iconografici volturnensi e cassinensi (vedi in particolare il Cristo Pantocrator sulla roccia) sono chiaramente individuabili e riferibili alla grande produzione di codici miniati che in Montecassino vedeva uno dei centri di maggiore prestigio. Basti ricordare che Carlo I proprio al monaco cassinese Giovanni affidò le miniature della Enciclopedia Medica.
In queste figurazioni ogni personaggio è indipendente, pur partecipando alla narrazione complessiva. Le stoffe sono lanose e morbide, e sebbene le figure ancora riflettano schemi orientali, come inevitabilmente si riscontra in molte delle pitture duecentesche, tuttavia la dolcezza delle linee e l’accentuazione espressiva dei volti denotano una maturata riflessione realistica ed un tentativo di umanizzare quegli elementi iconografici che per il passato erano stati assunti esclusivamente per il loro aspetto simbolico.
Le stesse linee di contorno tendono a scomparire e le esecuzioni della Cripta di Epifanio non sono che un lontano ricordo. Alla geometrica trattazione delle parti chiaroscurali, che in larga misura troviamo ancora nel S. Cristoforo gigantesco della navata principale, si sostituisce un calibrato uso delle sfumature color pastello che addolciscono i rilievi. senza che l’autore tuttavia rinunci mai ad una netta marcazione delle linee di contorno. Ne consegue una ricchezza plastica di notevole pregio che, ancora una volta, non può che confermare i rapporti con i grandi centri culturali dell’epoca e soprattutto di Napoli e Roma.
Dal Vangelo di Luca (1, 28-29): L ‘Angelo entrò da lei e disse: Gioia a te, o piena di grazia, il Signore è con te. A quelle parole Maria rimase sconvolta e si domandava che cosa significasse quel saluto (13).
Dell’Annunciazione è visibile sulla sinistra la figura dell’Angelo Gabriele di cui è rimasta solo parte dell’ala piumata e un frammento del viso con l’aureola. Della Madonna rimangono tracce del volto con aureola e parte del panneggio della tunica con i segni di un libro tenuto con la mano sinistra.
Dal Vangelo di Luca (2,8-12): C’erano, nei dintorni, dei pastori che vivevano nei campi e che di notte vegliavano il loro gregge. L’Angelo del Signore apparve ai pastori e la gloria del Signore li avvolse nella sua luce. Furono colti da grande terrore. Ma l’Angelo disse loro: oggi nella città di Davide vi è nato un Salvatore, che è Cristo Signore. Questo vi servirà di indicazione: troverete un bimbo appena nato, avvolto in fasce e giacente in una mangiatoia.
Della scena dei pastori rimane poco, anche se nella serie di rappresentazioni era certamente quella più complessa sia per quantità di figure che per ambientazione scenografica. L’immagine di un bambino compare in primo piano sulla sinistra, mentre una figura di donna senza aureola è sistemata nella parte alta del riquadro. Quasi al centro, molto rovinato, è il Bambinello posto in una culla-mangiatoia con un cane che appare nella parte inferiore. In alto a destra si riconosce una figura, poco definita, con aureola.
Dal Vangelo di Luca (2,21-38): Venne poi il giorno in cui, secondo la legge di Mosè, essi si dovevano purificare. Maria e Giuseppe portarono il bimbo a Gerusalemme per presentarlo al Signore, conforme a quanto è scritto nella legge del Signore: Ogni bimbo, primogenito sarà consacrato al Signore, e per offrire un sacrificio in base a quanto è detto nella legge del Signore: Un paio di tortorelle o due piccioni (…). C’era a Gerusalemme un uomo di nome Simeone (…). Simeone venne dunque al Tempio, mosso dallo Spirito. Quando Giuseppe e Maria portarono il bimbo Gesù per compiere a suo riguardo le prescrizioni della legge, Simeone lo prese fra le braccia, benedisse Dio e disse: Adesso, o Signore, tu puoi, secondo la tua parola, lasciare che il tuo servo se ne vada in pace, poiché i miei occhi hanno visto la tua salvezza, che hai preparato al cospetto di tutti i popoli, luce per illuminare le nazioni e gloria del tuo popolo Israele (…). C’era lì anche una profetessa, Anna, figlia di Fannel, della tribù di Aser. Era molto avanzata di età. Dopo essere vissuta, dal tempo della sua verginità, sette anni con il marito, era rimasta vedova, giunta all’età di ottantaquattro anni non lasciava mai il tempio, servendo Dio notte e giorno, nel digiuno e nella preghiera. Arrivò in quello stesso istante e si mise a lodare Dio e a parlare del bimbo a tutti coloro che aspettavano la liberazione di Gerusalemme.
E’ questa la composizione giuntaci più completa nella narrazione e che si ricollega con evidenza ai moduli compositivi più tradizionali.
E’ inevitabile per esempio il riferimento complessivo ai mosaici di Pietro Cavallini, del 1291, a S. Maria in Trastevere, anche se nessun riferimento stilistico accomuna le due opere. E’ rispettato ogni dettaglio della narrazione evangelica. S. Giuseppe sulla sinistra, con aureola gialla, è in piedi e regge nelle mani due colombe. I capelli, ben pettinati, sono bianchi mentre bionda è la barba. Ha una tunica giallo-oro su cui si sovrappone un mantello rosso.
La Madonna, anch’essa in piedi, regge nelle mani il Bambino che si rivolge con le mani tese verso Simeone. L’aureola è rossa, la tunica ed il mantello sono scuri. S. Simeone, l’anziano sacerdote, con le mani rivolte verso il Bambino, è coperto da un grande mantello verde-chiaro che nasconde quasi completamente la tunica rossa da cui fuoriesce un piede scalzo. I capelli bianchi, molto lunghi, scendono scompigliati sulle spalle inarcate. Una barba fluente ed ispida caratterizza il viso incorniciato in un’aureola gialla.
Tra la Madonna e Simeone, nella parte bassa, è situato un piccolo tavolo che allude ad un altare. E’ coperto da una tela di lino che, pieghettata sui lati, presenta motivi decorativi geometrici in rosso. Su di esso è poggiato solamente un calice. La composizione si arricchisce con l’accenno a tre arcatelle che nella parte alta, simboleggiando il tempio, vanno a confondersi con le cornici piane che inquadrano l’intero episodio e su cui compare l’epigrafe in caratteri gotici: S. SIMEON.
Di difficile riconoscimento un personaggio posto sul lato a sinistra in un diverso riquadro. La parte superiore dell’affresco è completamente staccata, mentre nella parte bassa si riconosce una figura seduta che sembra reggere con la mano destra qualcosa posta sulle spalle. La mano sinistra invece regge un cartiglio poggiato sulle gambe. Dalla tunica verde coperta da un mantello rosso, appaiono i piedi con calzature a tacchi molto alti che poggiano su uno scannetto. Potrebbe trattarsi della profetessa Anna, quasi sempre presente nella scena della Presentazione al tempio con un cartiglio nelle mani.
Sull’estremità della parete infine l’ultimo riquadro contiene l’immagine di due Sante in piedi. Anche in questo caso è praticamente impossibile il riconoscimento sicuro di esse. La figura a sinistra, con una tunica verde stretta alla vita ed un mantello rosso sulle spalle ha un’aureola rossa. Con la mano destra regge un lembo della propria veste mentre con la sinistra, coperta dal mantello, regge una corona dorata con una croce nella parte centrale a significare che si tratta di una martire. Sullo spigolo alto di sinistra si leggono tre lettere alla gotica SCA (Sancta) e null’altro.
La santa a destra ha, invece, una tunica marrone e mantello quasi nero. Con la mano destra regge una Croce e con la sinistra un libro chiuso con brossura in rosso. Anche se non appare il giglio potrebbe trattarsi di Santa Chiara la cui beatificazione avvenne nel 1255 in Anagni e la cui venerazione rapidamente si diffuse insieme a quella di S. Francesco. Ne potrebbe essere conferma non solo il colore della tunica, ma anche la presenza della Croce in una mano e del libro della Regola nell’altra, secondo una iconografia abbastanza in uso fino al XV secolo.
Sulla parete opposta alla roccia, partendo da destra, ad un livello superiore a quello degli apostoli, vi è un’adorazione di Magi. Dal Vangelo di Matteo (2.1l): Entrati nella casa, videro il bambino con Maria sua madre, e inginocchiatisi, lo adorarono; poi, aperti i loro scrigni, gli offrirono in dono oro, incenso e mirra.
La narrazione, in questo caso distesa e con una netta differenziazione dei singoli personaggi, solo attraverso scenografiche forzature si compone nella sua complessità. Da sinistra i tre Magi: il primo in piedi ha la tunica ed il mantello rosso, con il capo coperto da un turbante, e regge una coppa con il coperchio sferico. Il secondo, con tunica rossa e mantello verde, anch’egli con una coppa a coperchio sferico, ha la faccia rivolta verso il primo, che gli sta alle spalle. Il terzo, con tunica verde e mantello rosso, ha la barba ed è inginocchiato su un solo ginocchio.
Sulla parte opposta la Madonna è seduta su un sedile coperto da un ampio tappeto che arriva fino a terra. La sua tunica è rossa con ornamenti nel basso e sottotunica verde. Il bambino, con aureola, ha invece una tunica dorata e con le mani ed il volto si rivolge ai Magi. Più a destra si riconosce la figura, molto rovinata, di S. Giuseppe con tunica rossa, mantello verde e sandali ai piedi.
Nel riquadro successivo, a sinistra, una Madonna in tunica rossa, un bambino senza volto ma con le mani protese verso l’alto in atteggiamento oratorio, sacerdoti in tunica bianca con paramenti da cerimonia, un altare coperto da una tela pieghettata con motivi ornamentali, sono quanto rimane della raffigurazione del Cristo Bambino tra i dottori nel tempio.
Dal Vangelo di Luca (2, 4147): Ogni anno i suoi genitori andavano a Gerusalemme per la festa della Pasqua. Quando Gesù ebbe dodici anni, salirono con lui, come al solito, per la festa. Al termine della festa ripartirono; ma Gesù rimase a Gerusalemme, all’insaputa dei suoi genitori. Credendolo nella carovana, fecero una giornata di strada, poi si misero a cercarlo tra i parenti e i conoscenti. Non lo trovarono; perciò ritornarono indietro, sempre alla sua ricerca, a Gerusalemme. In capo a tre giorni lo ritrovarono nel Tempio, seduto in mezzo ai dottori ad ascoltarli e interrogarli; tutti quelli che lo udivano rimanevano stupefatti della sua intelligenza e delle sue risposte.
Peccato che anche la teoria degli apostoli abbia subito pesanti alterazioni, vuoi per le pessime condizioni ambientali, vuoi per le cennate opere seicentesche di spicconatura ed intonacatura. Delle otto figure che sono situate sul fondo dell’aula, due sono quasi completamente svanite e le altre malamente leggibili.
Le quattro sulla parete longitudinale sono meglio conservate nei volti, pure essendo scomparse molte parti del corpo. Nelle due file i personaggi sono tutti in piedi e variamente rappresentati nell’abbigliamento, comunque sempre costituito da una tunica ed un mantello. Originariamente il nome era segnato nella cornice superiore in corrispondenza di ogni singola figura, ma oggi l’unica epigrafe, con i caratteri alla gotica, rimasta leggibile interamente è quella di Andrea, che è il sesto da sinistra. Il quarto ha la mano benedicente ed un libro nella mano sinistra, il quinto regge un’asta.
Sull’altra parete il primo da sinistra, con il volto barbuto, regge un libro con le due mani; il secondo, in atteggiamento benedicente, regge con la sinistra un libro; il terzo, con il capo quasi calvo come il seguente, ha la barba e rimane poco del corpo; l’ultimo, con la barba, regge un libro fra le mani. La scena è ambientata all’aperto come si desume dalla parte bassa dell’affresco dove compaiono stilizzati fiori e ciuffi di erba.
Solitamente tale tipo di raffigurazione si trova collocata nei catini absidali e di esempi consimili si ritrovano anche nell’area volturnense. Il più conosciuto di essi è situato nella parte bassa dell’abside di S. Lorenzo a S. Maria Oliveto dove la teoria degli apostoli è sottoposta ad un Cristo Pantocrator.
Ma non si può non fare riferimento, ma solo iconografico, agli altri di S. Maria a Ventaroli, S. Angelo in Formis, S. Angelo a Pianella, S. Maria in Foro Claudio, S. Maria di Ronzano. Gli apostoli di S. Maria delle Grotte comunque denotano, rispetto agli altri, non solo una maggiore concretezza per l’assenza di equivoche sfumature nella trattazione dei contorni, ma anche una migliore esecuzione pittorica. La stessa angustia del luogo non ha indotto chi li dipinse a comprimere su una sola parete la scena, come spesso accade, proprio per non rinunciare a rappresentare ogni singolo apostolo nella propria interezza emblematica. Gli atteggiamenti individuali, con il libro ed il bastone simboli della dottrina e della predicazione itinerante tra i popoli, ci richiamano alla narrazione evangelica dei quaranta giorni che intercorsero tra la Resurrezione e l’Ascensione durante i quali gli apostoli ricevettero da Cristo i poteri di governare, di insegnare, di rimettere i peccati e di fare miracoli.

Due apostoli nell’aula interna
Per quanto riguarda l’interpretazione della scena sorgono alcuni problemi. Notoriamente alla Ascensione di Cristo assistettero solo undici apostoli, per l’assenza di Giuda, tuttavia spesso nelle analoghe rappresentazioni le figure erano comunque dodici, e non certo solo per una questione di simmetria. Il numero dodici ha sempre avuto un significato simbolico importante nella liturgia ecclesiastica e nella tradizione biblica; dodici, infatti, non furono solo gli apostoli, ma anche le tribù di Israele, i candelabri dell’Apocalisse, le stelle attorno al capo della Donna vestita di sole, le porte del Paradiso. Come pure ai singoli apostoli veniva dedicato ogni mese dell’anno solare. E per conservare questo numero, infatti, veniva spesso aggiunto S. Paolo che, pur non essendo uno degli apostoli, veniva comunque considerato tale per la fondamentale importanza della sua predicazione. Tuttavia bisogna tenere presente che in raffigurazioni più antiche, come ad esempio il sarcofago del Vescovo Cornodio di Arles del IV secolo, gli apostoli si trovano pure raggruppati in numero di otto, con a lato un gruppo di quattro figure rappresentanti gli evangelisti, sebbene due di questi non fossero apostoli (14).
La circostanza che i quattro personaggi della parete laterale di S. Maria delle Grotte abbiano nelle mani un libro, ed in questo caso il Vangelo, potrebbe confermare l’analogia.
Nelle spallette dell’intradosso doppiamente strombate, della piccola apertura che collega le due aule, sono poste quattro figure, una per parte, di cui meglio conservate sono quelle verso l’interno e praticamente illeggibili le altre due. A destra si riconosce un Cristo, con aureola crociata colore oro, che benedicendo regge un libro con la sinistra. Sull’altro sguincio dovrebbe trattarsi di un S. Giovanni Evangelista rappresentato con tunica verde, mantello rosso e calzari ai piedi.
Anche su questa minuscola apertura vale la pena di soffermarsi qualche attimo ad osservare da vicino alcuni sorprendenti graffiti il cui studio approfondito potrebbe portare a conoscenze più concrete della religiosità popolare e del contesto culturale dei frequentatori della chiesa. Compare, infatti, una grande quantità di segni incisi sulla parete affrescata, alcuni dei quali sembra siano stati tracciati prima della esecuzione delle pitture, potendosi osservare che le loro scanalature sono coperte dal colore. Si tratta di una vera e propria sintesi delle più tipiche rappresentazioni del mondo fantastico medioevale e vi si vedono rappresentati grifoni alati, animali mostruosi nonché un drago che sputa fuoco. Grande la quantità di intrecci dalle forme più disparate e tutte di origine orientale che vanno da quelle viminee a quelle stellari o circolari o in forma di svastiche. Tra i segni più ripetuti vi sono quelli che vanno sotto il nome di nodi di Salomone, figure geometriche derivate dall’esalfa o dal pentalfa di origine astrologica, che venivano adoperate nelle pratiche magiche contro i malefici e le fatture.
Della serie superstite delle pitture poste sulla parete rocciosa quella che concretamente più si lega ai modelli benedettini, diffusi soprattutto attraverso le miniature di Montecassino, è il Cristo Pantocrator. Ma sebbene il modello sia consueto fin dall’alto medioevo, le poche tracce di pittura rimaste rivelano una esecuzione contemporanea agli affreschi sottostanti. Ancora vi si riconosce l’immagine del Cristo seduto e benedicente mentre con la sinistra regge un libro aperto verso chi guarda. Del capo rimangono solo poche tracce del contorno, mentre completamente scomparso è il viso. Di difficile lettura anche la rimanente parte del corpo mentre delle lettere del libro sopravvivono pochi ed inintellegibili segni. Meglio conservata la parte inferiore dove i piedi appaiono calzati da sandali con sottilissime cinghie.
La grande mandorla che racchiude il Pantocrator è sorretta da due angeli dalle grandi ali piumate e lunghe tuniche multicolori. Contrariamente a quanto di solito avviene nelle analoghe rappresentazioni, sia dei catini absidali, sia delle miniature su codici, gli angeli non sono ritratti in posizione statica, bensì in atteggiamento di volo. Di conseguenza le gambe, leggermente arretrate rispetto al corpo, non poggiano direttamente sulle nuvole stilizzate che ancora sopravvivono nella rappresentazione rupestre.
L’iconostasi
Sui significati di questa singolare composizione, che è nello stesso tempo artistica ed architettonica, non si parlerà mai a sufficienza. Purtroppo le condizioni in cui ci è pervenuto il monumento non consentono una risposta definitiva ai vari problemi che essa pone. Qui infatti non ci troviamo di fronte alla consueta rappresentazione della vita dei santi, o di Cristo, o della Madonna, ma di fronte ad una vera e propria iconostasi dove, pur volendo ritrovare una certa logica nella unificazione dei santi, prevale la individualità di ognuno di essi. Certamente però per comprenderne il significato è necessario tenere presente che la realizzazione, come abbiamo visto, è anteriore alla composizione del presbiterio nella forma che si osserva oggi. Altresì occorre notare che per tutto il medioevo è significativa la presenza delle raffigurazioni degli apostoli nella parte bassa dei catini absidali e comunque direttamente a contatto con il celebrante in evidente rapporto liturgico. Basti ricordare che durante la celebrazione della Messa essi vengono singolarmente invocati dal sacerdote. E tale consuetudine liturgica trova adeguata rispondenza architettonica e pittorica fino all’epoca della controriforma, quando nuove concezioni vennero introdotte nella composizione spaziale delle chiese. Di conseguenza è da ritenere che la parte recondita della chiesa abbia conservato la funzione del luogo del sacrificio, con l’altare nelle vicinanze della teoria degli apostoli i quali, direttamente, partecipano alla cena assistendovi in piedi.
Simbolicamente in piedi sono perciò tutti i santi della iconostasi che, secondo la tradizione orientale, sono ospiti venuti dal cielo a partecipare, al sacro rituale. Ed è significativa la consuetudine liturgica del celebrante che rende onore ad essi per la loro personale presenza attraverso l’incensazione durante la celebrazione della messa. Una presenza che è maggiormente importante in quanto i santi partecipano non come deità pagane astratte ed estranee al sentimento umano, ma come membri della comunità con la quale soffrono e della quale si interessano. Per questo ogni singola immagine narra, con elementi essenziali ed immediatamente comprensibili, il miracolo più significativo.
Di straordinaria efficacia, dunque, il ciclo di pitture che si sviluppa per tutta la parete di separazione delle due aule, non solo per la grande quantità di figure che vi compaiono, ma anche per la notevole qualità dell’esecuzione di molte di esse. La figura dominante è la colossale rappresentazione di S. Cristoforo che, con la sua altezza di oltre 4 metri e mezzo, costituisce il principale polo di attenzione. Ai suoi lati, disposti su due file che complessivamente non raggiungono la sua altezza, una serie di santi, ognuno dei quali è situato in un proprio riquadro.
Le raffigurazioni proseguono anche sull’intradosso del grande arco situato in fronte all’ingresso.
Tutta la parete risulta gravemente danneggiata dalle scalfitture seicentesche e alcune delle immagini sono totalmente scomparse. Difficile una lettura iconologica di tutte le raffigurazioni per la mancanza di epigrafi che permettano una rapida identificazione dei singoli santi, anche perché non appare una chiara logica nella scelta di essi. Ciò lascia supporre che la loro esistenza sia stata piuttosto frutto di una scelta popolare, anziché conseguenza di una determinazione liturgica o addirittura teologica, come ampiamente dimostrabile per il ciclo della cripta di Epifanio, dove la spiritualità di Autperto, fondata sulla centralità della Madonna, trova rispondenza anche nella composizione pittorica. Potrebbe in altri termini trattarsi di una serie di immagini eseguite su ordinazioni di fedeli e collocate sulla parete secondo una logica geometrica più che agiografica. Vi si riscontra tuttavia una certa volontà di ordinare la disposizione secondo gruppi più o meno omogenei.
Nella parte più alta, immediatamente al disotto delle travi della copertura, in due grandi riquadri sono riprodotte le figure di due santi cavalieri, simili fra loro e senza alcun elemento particolare che ne garantisca l’identificazione. Fra i Santi che comunemente vengono cosi raffigurati vi sono Giorgio e Martino, che tra l’altro sono diffusamente venerati nell’area vulturnense. Vi si vedono rappresentati a cavallo, quello a sinistra bianco e quello a destra scuro, due soldati armati e con il capo aureolato.
La esecuzione appare con evidenza piuttosto rozza e affrettata e si discosta chiaramente da quella degli affreschi sottostanti.
Grandiosa, secondo la tradizione, la rappresentazione di S. Cristoforo, che comunque appare molto più raffinata rispetto alle altre, più o meno contemporanee, che si ritrovano in numerose chiese medioevali.
Il culto per questo santo, martire della Licia, si diffuse in Italia a partire dal XIII secolo, quando Jacopo da Varagine ne tracciò l’episodio del trasporto di Cristo sul fiume nella Legenda aurea, facendolo divenire il protettore dei pellegrini.
Secondo tale leggenda, Cristoforo, che possedeva una corporatura gigantesca, aveva deciso di mettere la sua forza al servizio del signore più potente della terra, per cui dopo aver servito un re ed un imperatore si donò al demonio, dal quale scoprì che ancora più forte di lui era il Cristo. Per questo si diede alla carità ritirandosi da eremita presso un fiume dove si caricava dei viandanti che dovevano guadare, trasportandoli sull’altra riva. Una notte un bambino gli chiese` di portarlo sulla sponda opposta ed egli subito iniziò il trasporto; però, man mano che si inoltrava nel fiume, il fanciullo diventava più pesante, rendendo quasi impossibile il cammino. Tuttavia Cristoforo, che si aiutava con un lungo bastone, riuscì a compiere l’impresa ed allora il bambino gli si rivelò per il Cristo e gli predisse il futuro martirio.
Per tutto il XIII e il XIV secolo immagini che lo presentavano sempre in proporzioni gigantesche, con un lungo bastone e con il bambino su una spalla, furono realizzate dovunque e non solo all’interno, ma anche sulle facciate delle chiese o sulle porte delle città.
Nel S. Cristoforo di Rocchetta molteplici elementi confermano la continuità di una presenza bizantina nell’area meridionale italiana. Addirittura pare che vi sia stata una precisa scelta dell’autore a voler evidenziare in questa raffigurazione, e non nelle altre laterali fatte dalla stessa mano, il carattere orientale del personaggio mediante l’adozione di modelli iconografici già sperimentati e consolidati nella tradizione pittorica religiosa. La solenne ieraticità e la regalità della raffigurazione è raggiunta non solo con l’applicazione di un panneggio di grande pregio negli ornamenti, ma soprattutto con la voluta staticità della figura che in tal modo sovrasta e si impone con ferma determinazione su tutte le altre.
Chi lo dipinse aveva una conoscenza precisa delle icone bizantine ed in particolare di quelle rappresentanti la Madonna con Bambino, che tanta diffusione ebbero nella cultura religiosa italiana. Non appaiono dubbi infatti che il Gesù Bambino che poggia sulla spalla di S. Cristoforo ripeta in maniera pedissequa un modello gia applicato altrove, tanto che un’attenta osservazione permette di ricavare che si tratti quasi di un forzato collage di una immagine del Cristo ripresa da una Madonna con bambino ed applicata su un’altra, i cui caratteri, nel volto, potrebbero tranquillamente essere attribuiti ad un Pantocrator. Il fanciullo, infatti, assume quella posizione che ritroviamo consueta nelle raffigurazioni dove compare quasi sempre in atteggiamento benedicente, poggiato sulla gamba sinistra della madre, con la tunica lunga che rivela una accentuata prominenza e rotondità del ventre, nonché una naturale piegatura delle gambe che serve a ben legare i due personaggi. Valga come esempio di riferimento il quadro di S. Maria in Flumine della chiesa di Amalfi e conservato alla pinacoteca di Capodimonte. Nel nostro caso invece le due figure, il Cristo Bambino e S. Cristoforo, sono totalmente indipendenti tra loro ed innaturali nel reciproco rapporto.
Inoltre, pare che vi sia stata, nel rappresentare Cristoforo, una voluta rinuncia a riferirsi alle consimili rappresentazioni forse già esistenti all’epoca in cui venne eseguito quello di Rocchetta. Ben diverso, infatti, il Cristoforo di Bominaco, della seconda metà del duecento, dove non solo non compare neanche lontanamente l’idea della regalità, ma viene esaltata semplicemente la gigantesca potenza fisica con una esecuzione peraltro molto rozza, pur se vi è un tentativo di evidenziare alcuni aspetti naturistici tratti dalla leggenda del trasporto di Cristo. Lo stesso deve dirsi del Cristoforo di Caramanico il cui livello artistico è di gran lunga inferiore a quello di Rocchetta.
Una qualche affinità nell’atteggiamento può ritrovarsi in quello sicuramente coevo che compare sulla parete di destra di S. Miniato al Monte, a Firenze, ma in quest’ultimo caso l’iconografia bizantina è totalmente estranea. In quelli di epoca successiva, come quello quattrocentesco della chiesa parrocchiale di Turrita, oppure quello cinquecentesco della Pieve della Sacra a Carpi, prevale poi l’aspetto realistico e gli ampi panneggi vengono sostituiti da abbigliamenti più consoni alla funzione che svolgeva il Santo lungo il fiume. Manifesta invece la relazione con le raffigurazioni dei Pantocrator non solo nella lineare rotondità del viso, ma anche nel trattamento della barba, ottenuta con geometriche sovrapposizioni chiaroscurali.
I capelli lunghi, ordinatamente raccolti e legati alle spalle, il collo accentuatamente tronco-conico, una sottile e perfetta definizione verticale del naso, nonché il taglio a mandorla degli occhi sono evidenti ripetizioni di moduli orientali, ai quali saldamente si legava la tradizione meridionale.
Molto ricche le decorazioni dell’abito, la cui regolarità geometrica, a cornici quadrate bianche che raccolgono motivi floreali in forma di croci gigliate, non si interrompe neppure dove si accenna alla piegatura della lunga tunica rossa. Notevolmente raffinate le decorazioni della fascia verticale dove elementi floreali si alternano a volute filiformi interrotte da gocce e rondelle che alludono a pietre preziose e ricami in oro. Vi si notano in questo caso elementi che, pur appartenendo al mondo bizantino, hanno diretto rapporto con la tradizione islamica. Anche se purtroppo molto rovinata, tale fascia verticale, quasi una stola, presenta i caratteri della ornamentazione cufica di cui, sia l’arte che I’architettura romanica, e quindi gotica, si servirono.
Usati soprattutto nelle decorazioni del Corano, i caratteri cufici ebbero grande successo soprattutto per la incomprensibilità e la enigmaticità del loro significato, e tra i veicoli per la loro diffusione furono proprio le stoffe che, già nel XII secolo, vedevano in Palermo uno dei centri più importanti del mercato islamico nel bacino mediterraneo.
Un ampio mantello poggia sulle spalle, tenuto da un gancio con borchia circolare di grosse dimensioni, anch’essa decorata con motivi che ritroviamo sovente negli ornamenti circolari dei panneggi di icone bizantine. La mano destra del Santo è sollevata ed il palmo aperto è rivolto verso chi guarda; la sinistra invece regge un sottilissimo bastone che, innestandosi sulla diagonale che congiunge gli spigoli del riquadro, contrasta con la verticalità della solenne figura.
Sulla sinistra del S. Cristoforo, nella parte superiore, una Santa con la corona del martirio regge una lancia che taglia in diagonale il riquadro. L’affresco è molto rovinato in basso, ma è presumibile che vi fosse rappresentato un drago. Dovrebbe trattarsi di S. Margherita di Antiochia, molto nota e venerata nella zona e conosciuta per l’episodio del drago. Margherita, orfana di madre, fu allevata dalla nutrice nella fede cristiana. Mentre pascolava le pecore fu vista da Olibrio, governatore della provincia, il quale non potendola avere né come moglie, né come concubina, la condannò alle più disparate torture, attribuendo alla sua fede cristiana i motivi dell’ostinato rifiuto. Uno dei tormenti, amplificato dalla tradizione popolare, fu quello di rinchiuderla in una buia prigione dove le comparve il Demonio che, sotto forma di drago, circondato da orribili serpenti, la inghiottì. Ma ella con una croce che aveva in mano gli squarciò il ventre e riuscì a liberarsi, anche se poi, subite altre torture, fu costretta al martirio per decapitazione.
Per la leggenda del drago, Margherita divenne la protettrice delle partorienti e come tale venne invocata e rappresentata in molte chiese di campagna.
Più in basso è l’immagine di S. Mauro che salva Placido. Questa figura, per le pessime condizioni dell’affresco e la totale mancanza del viso, fu erroneamente attribuita dal Cellucci ad una Santa. Altri invece l’hanno confusa con un S. Nicola per le analogie con l’altra immagine che è situata nella parte inferiore dell’intradosso del grande arco di collegamento delle due navate.
La somiglianza delle due rappresentazioni, che evidentemente si riferiscono a miracoli analoghi, indusse l’autore degli affreschi a chiarire meglio l’attribuzione dei personaggi inserendo appunto il nome del Santo nella parte superiore del riquadro. Ora, mentre si è conservata l’epigrafe del S. Nicola, completamente scomparsa è la parte alta del S. Mauro, compreso il capo del santo. Rimangono però sufficienti elementi per avere una comprensione completa della raffigurazione.
S. Mauro, fidato collaboratore di S. Benedetto a Subiaco, divenne particolarmente venerato per un miracoloso episodio di cui fu protagonista. Un giorno, infatti, S. Benedetto vide il fanciullo Placido, affidatogli dal padre Tertullo, il quale, mentre con una coppa cercava di prendere dell’acqua nel lago, si sporse troppo e cadde rischiando di annegare. Chiese allora al discepolo Mauro di intervenire e questi sollecitamente si diresse verso il fanciullo e, presolo per i capelli, lo portò a riva. Solo allora si accorse di aver camminato sull’acqua senza affondare.
L’avvenimento fu narrato da S. Gregorio Magno nei Dialoghi, ma la tradizione si arricchì di fatti leggendari derivati soprattutto da una biografia scritta nel IX secolo dall’abate Odone di Glanfeuil.
S. Mauro fu spesso rappresentato vestito da abate e così appare nella figurazione di S. Maria delle Grotte. Il fanciullo Placido, tenuto per i capelli, mantiene una coppa nella mano sinistra e qualcosa che non si vede più in quella destra. Il fatto che Placido indossi una stola diaconale può essere una ulteriore conferma per il riconoscimento dei personaggi; infatti egli, secondo la tradizione, rimase nella vita monastica sempre diacono.


S. Nicola di Mira
Sulla parte bassa della fascia interna all’arco, ben conservata è la figura di un S. Nicola vescovo di Mira, molto venerato nel meridione italiano, la cui perfezione esecutiva del viso pare abbia costituito un freno alla violenta opera di spicconatura della parete allorché fu ricoperto di nuovo intonaco. Il Santo è rappresentato con i paramenti sacri. Il volto, che in qualche modo per i caratteri somatici ci ricorda quello musivo del S. Nicola della basilica di S. Marco a Venezia, è di ottima fattura. La concretezza dei lineamenti ben definiti geometricamente, pur determinando anche in questo caso una fissa espressività, tuttavia rivela la conoscenza di quelle raffigurazioni che ormai, nel Trecento, erano ampiamente adottate dalle correnti pittoriche romane e napoletane. Di grande effetto l’incorniciatura dell’aureola, modulo base della costruzione geometrica, che con il proprio rilievo scanalato conferisce alla figura un senso di profondità, accentuato da sapienti effetti chiaroscurali sia nel volto che nella mitra poggiante sul capo. Dall’ampia casula rossa con il tau dorato e segnato da tre croci sui tre bracci, appare da una parte la mano destra benedicente e dall’altra la mano sinistra che regge un sottile pastorale latino mentre, nello stesso momento, tira per i capelli, sollevandolo, un fanciullo che mantiene una coppa. Nel basso i piedi, che calzano pantofole di raso rosso, fuoriescono appena dal camice bianco. Per quanto riguarda l’interpretazione iconografica bisogna notare che la raffigurazione si discosta dalle tipiche scene della vita del santo. Infatti generalmente egli veniva rappresentato con i tre fanciulli resuscitati dopo che un oste li aveva fatti a pezzi e messi in salamoia, oppure con le tre monete d’oro che donò come dote a tre giovani fanciulle. Nel nostro caso, considerando l’analogia compositiva con il laterale S. Mauro, deve trattarsi di un salvataggio dall’acqua. Questo miracolo fu molto rappresentato soprattutto in oriente ed in particolare vari esempi si ritrovano in icone russe del XIII secolo, quale quella di S. Nicola che libera Demetrio dal fondo del mare, del XIV secolo, quale quella di S. Nicola che salva un uomo che sta per annegare (ambedue alla Galleria Tret’jakov di Mosca) (15).
Un’altra leggenda viene riportata da Jacopo da Varagine e racconta di un uomo che pregò il Santo perché gli facesse avere figlio; in cambio egli lo avrebbe portato presso la sua chiesa dove avrebbe offerto una coppa d’oro. Il figlio nacque e fu chiamato Adeodato. Quando divenne giovane il padre decise di sciogliere il voto facendo fare la coppa. Questa fu realizzata così bene che ne volle far fare un’altra dello stesso valore, dopodiché prese la via del mare con il figlio per raggiungere la chiesa di S. Nicola. Durante il viaggio il genitore chiese al ragazzo di raccogliere dell’acqua dal mare con la coppa destinata all’altare, ma quest’ultimo, essendosi sporto eccessivamente, cadde in mare e scomparve tra i flutti. Nonostante la disgrazia, il padre disperato volle andare ugualmente alla chiesa del Santo, dove tentò tre volte di offrire l’altra coppa appoggiandola sull’altare, ma questa veniva respinta da una forza invisibile, finché, all’improvviso comparve il figlio con la coppa in mano. A questo punto il padre, felice per la grazia ricevuta, donò ambedue i vasi e partì raccontando a tutti del miracolo.

S. Nicola salva Adeodato dal mare
Iconograficamente simile, ma profondamente diverso nella esecuzione e nello stile, è il S. Nicola di uno degli affreschi cinquecenteschi della cattedrale di Venafro dove, ugualmente vicino al Santo, si vede un bambino che regge una coppa.
Al disopra del S. Nicola, sempre sulla fascia interna dell’arco, una raffinata raffigurazione di un santo dal volto senza barba. Un’aureola a rilievo con i raggi scanalati e contornata da una linea circolare rossa, inquadra il capo sul quale si sciolgono lunghi capelli biondi ondulati e simmetricamente divisi da una riga centrale. Una piccola bocca e l’accentuata inarcatura delle sopracciglia sugli occhi a mandorla evidenziano la fissa espressività del personaggio. Una lunga tunica verde è coperta da un mantello rosso asimmetricamente poggiato sulla spalla sinistra e abbottonato su quella destra, mentre un lembo di esso rigira sulla mano destra che regge una sottilissima asta con terminazione superiore a croce gigliata. La mano sinistra che fuoriesce dal mantello all’altezza dell’ombelico regge un voluminoso libro chiuso.
Alla destra del S. Cristoforo, su due file di riquadri appaiono altri santi, dei quali alcuni riconoscibili con certezza ed altri di difficile identificazione. Immediatamente a destra la figura femminile, più alta delle altre, dovrebbe essere piuttosto la Maddalena anziché la Madonna. Infatti oltre ad avere la mano destra aperta verso chi guarda, regge con la mano sinistra un cofanetto nel quale dovrebbero essere contenuti gli unguenti da utilizzare per la sepoltura del Cristo. Ricercato il panneggio del mantello rosso che, sul capo, ci ricorda quello della Madonna nei mosaici di S. Marco a Venezia. Anche in questo caso evidente è il riferimento alla iconografia orientale, non solo nelle circolari gote rosse che si stagliano sulla geometrica rotondità del viso, ma anche nelle decorazioni puntiformi del cofanetto.
Verso destra è posta invece una serie di santi monaci. Il primo è inequivocabilmente S. Benedetto, rappresentato in atteggiamento benedicente e con la Regola nella mano sinistra. Sulla cornice verticale, infatti, sopravvivono alcune lettere di un originario S. BENEDICTUS. Il capo, tipologicamente simile a quello già analizzato di S. Nicola, è coperto dalla cocolla dell’abito monastico. Immediatamente dopo è raffigurato S. Onofrio, ricoperto da un vestimento peloso sul quale si confondono una lunga barba ed una irsuta capigliatura. Totalmente scomparso il volto, mentre conservati rimangono le gambe e i piedi nudi. La venerazione per S. Onofrio fu diffusissima nell’area molisana tanto che la sua immagine appare spesso in chiese eremitiche o rupestri, come nel caso di S. Eramo ad Isernia. Ugualmente numerose le chiese dedicategli, tutte fuori dei centri abitati, come quelle di Agnone, Carpinone e Chiauci.
Segue l’immagine di S. Francesco che è raffigurato secondo gli schemi iconografici più consueti. La mano destra aperta a mostrare i fori delle stimmate e quella sinistra che regge la Regola. Dal lungo saio marrone, abilmente concluso in basso nelle piegature verticali, appaiono i piedi calzati da sandali. Il volto è contornato da una cortissima barba mentre la cocolla appare molto arretrata rispetto al capo per evidenziare la tonsura.
Infine nell’ultimo riquadro, l’ultimo personaggio, pur essendo in abiti monastici, non è un benedettino, né francescano. Il capo è coperto dal cappuccio, calato fino alla fronte, di un ampio capperone rosso. Il volto, smunto e con gli occhi molto tirati, è caratterizzato da un’ispida barba non lunga. Nella parte inferiore la tunica biancastra, con una panneggiatura a pieghe e contropieghe geometricamente richiamate all’altezza delle ginocchia, è solcata verticalmente da una sorta di stola che esce dal mantello.
Di difficile lettura le mani. La destra è rivolta verso chi guarda a mostrare una catena per carcerati. Questo particolare non lascia dubbi sulla attribuzione della figura, trattandosi certamente di S. Leonardo, anch’egli venerato nel territorio Volturnense tanto che gli sono dedicate anche chiese e cappelle, molte delle quali scomparse. Valga come esempio la chiesa extra-murale di Colli o i toponimi di ponte S. Leonardo ad Isernia, o colle S. Leonardo ove insiste la Cattedrale di Venafro.
Leonardo di Limoges, secondo la tradizione, sarebbe vissuto ai primi dei VI secolo. Da giovane, arruolatosi nell’esercito di S. Remigio vescovo di Reims, si adoperò presso il re, insieme al suo protettore, per la liberazione di gente innocentemente carcerata. Divenuto monaco edificò nei pressi di Limoges un monastero dove accorrevano non solo prigionieri liberati miracolosamente dopo averlo invocato, ma anche malati e pellegrini.

S. Gregorio Magno
La mano di un altro artista realizzò, invece, il santo che appare sull’imposta dell’arco di separazione del presbiterio. Diversi dalle altre figurazioni risultano non solo la cornice rettilinea, ma anche il trattamento del panneggio che in questo caso perde la tendenza al geometrismo. Anche il volto senza barba, sebbene perfettamente ovale, perde la tagliente linearità degli altri e, pur rivelando una minore capacità artistica dell’autore, tuttavia fa ritenere più tarda, rispetto alle altre, l’esecuzione. La tonsura al capo e la dalmatica dorata, nonché il libro nella mano che rappresenta una Regola o la Dottrina, inducono a pensare che si tratti di un monaco importante. Potrebbe essere S. Gregorio Magno, il quale dopo aver fondato in gioventù vari monasteri, fra cui quello di S. Andrea al Celio dove a lungo visse, fu eletto Papa assumendo con le sue opere fondamentale importanza nella storia della dottrina cristiana. Ed è vestito da monaco, o al massimo da abate, che Gregorio veniva raffigurato nei più antichi codici miniati.
Nel registro inferiore la prima immagine dopo S. Cristoforo appartiene certamente ad una Santa regina. Lo rivela non solo la ricchezza delle vesti multicolori dove ornamenti puntiformi richiamano le pietre preziose e le volute filiformi alludono a ricami in oro, ma anche la corona posta sul capo. La mano sinistra sembra reggere una seconda corona, ma purtroppo le cattive condizioni della parete non permettono di affermarlo con certezza. A lato una seconda figura femminile con una tunica ed un mantello molto semplici. Anche in questo caso le pessime condizioni dell’affresco non consentono una identificazione precisa, anche per l’assenza di un qualsiasi elemento di riferimento agiografico.
Negli ultimi due riquadri sono situati S. Giovanni e S. Vincenzo. Il primo ha l’aspetto di un anacoreta; infatti, è ricoperto da una corta tunica di pelo di cammello, mentre le gambe ed i piedi sono nudi. Con la mano sinistra regge il cartiglio ove di solito compare la scritta: Ecce Agnus Dei. S. Vincenzo è invece riconoscibile per i paramenti di diacono e regge con la mano sinistra un libro. L’aureola inquadra un capo dai capelli corti ed un viso senza barba. Il culto per S. Vincenzo di Saragozza, nella valle del Volturno, è precedente alla stessa creazione dell’abbazia che porta il suo nome. E’ il Chronicon Vulturnense ad attestarlo quando riferisce che Paldo, Tato e Taso nell’VIII secolo costruirono il complesso monastico sull’antico e abbandonato oratorio di S. Vincenzo in Samnii partibus super ripam Vulturni fluminis, ubi inicium sumit a mille fere passibus, in quo videlicet loco situm est oratorium martyris Christi Vincencii nomine dedicatum (16).
Da quanto descritto possiamo avere solo un’idea della quantità di pitture che si susseguivano sulle pareti della chiesa e dai brandelli di esse che compaiono in ogni parte si desume che tutto l’edificio fosse, nel XIV secolo, affrescato. Tracce consistenti si ritrovano anche nella buia cappella rupestre in cui è situata l’arca funeraria gotica. Un piccolo reperto mostra i segni di una decorazione con panneggio ornato di rombi, identico per esecuzione e forme a quello che appare ai piedi degli apostoli, confermando così che fu la medesima mano ad eseguire queste pitture. Nella stessa cavità, rettificata in forme architettoniche trecentesche mediante uno scavo interno, appare una santa martire che regge con la mano destra una croce e con la sinistra una corona con diademi. L’epigrafe verticale che ancora vi si riconosce, SCA MARG(a)RITA, ci rivela che si tratta di S. Margherita.
Questo ambiente, in origine, doveva essere di notevole ricchezza pittorica essendo quasi interamente affrescato da un ciclo dedicato alla sepoltura del Cristo. Ciò che rimane nella parete di destra ne è diretta conferma. Vi si scorge, verso l’apertura, una figura di donna in piedi che regge una ampolla per unguenti e che certamente rappresenta la Maddalena o una delle Pie Donne. Più a sinistra l’immagine di S. Giovanni presso il sepolcro. La penombra generale non solo accentua la suggestione della narrazione, ma esalta altresì la funzione sacra, e nello stesso tempo misteriosa, di questa grotta che rappresenta sicuramente l’origine di tutto il complesso di S. Maria.
Nel presbiterio poco rimane della grande immagine della Madonna seduta, mutilata nella parte superiore. Meglio conservati i due frammenti di un ciclo di pitture che apparivano sulle pareti del coro. Si tratta della ripetizione di scene già rappresentate nell’aula rupestre, ma che in questo caso assumono una diversa funzione narrativa. Secondo il Cellucci questi affreschi non dovrebbero essere anteriori al 1513 in quanto all’esterno dell’edificio, nella parte alta, egli notava una pietra con tale data che attesterebbe l’epoca di edificazione del coro. Indubbiamente al 1513 deve riferirsi l’esecuzione di lavori alla chiesa di S. Maria, ma il fatto che la data sia posta quasi al limite del cornicione potrebbe far intendere che si sia trattato solo di rifacimenti parziali, quando gli affreschi erano stati già eseguiti, probabilmente nel XV secolo. Impropriamente lo stesso Cellucci (ma le condizioni delle pitture erano peggiori di quelle attuali) riconosce nelle due rappresentazioni un’Adorazione dei Magi ed una Sacra Famiglia. In realtà nella prima potrebbe trattarsi anche dei Magi oppure dei Pastori alla capanna, per la presenza di numerosi personaggi popolari, soprattutto donne, ma sicuramente si tratta di una Presentazione al Tempio nella seconda. Vi si riconoscono, infatti, tutti gli elementi che costantemente appaiono in tale scena: S. Giuseppe, sulla sinistra, di cui rimane solo il capo e parte della tunica, trattiene le due tortorelle della narrazione evangelica. La Madonna con le mani tese, coperta da un largo mantello, si rivolge al Bambino; questi è tenuto nelle braccia da S. Simeone, il cui aspetto non è irsuto come quello delle pitture della parete rupestre. Infine sulla destra l’immagine della profetessa Anna con la mano destra protesa verso il bambino e con quella sinistra che regge un cartiglio aperto. Pur se l’esecuzione rivela una capacita pittorica decisamente inferiore, come qualità, a quella degli altri affreschi, tuttavia vi si riconosce una spazialità architettonica conferita da una notevole profondità prospettica. Una doppia serie di archetti, che tagliano longitudinalmente la scena, si conclude sullo sfondo con un ambiente coperto da una volta a crociera che si richiama chiaramente alla crociera del presbiterio della chiesa in cui sono stati eseguiti.
Da considerare con interesse nei vari cicli pittorici anche i motivi decorativi la cui funzione, con evidenza, non è solo quella di completare i vuoti delle riquadrature delle singole immagini, ma anche quella di evidenziare una continuità tra le varie raffigurazioni. Nell’area più interna vi è una predilezione, nella terminazione inferiore, per un panneggio orizzontale con tela continua pieghettata ed ornata da applicazioni a rombi. La linea di demarcazione ai livelli superiori è determinata, invece, da una cornice ad imitazione di marmo policromo intarsiato, con un susseguirsi di triangoli inseriti tra due fasce continue. Compaiono anche decorazioni a spirale fitomorfica. Nell’aula maggiore le decorazioni sono caratterizzate da riquadrature a linea continua ornate da puntini bianchi sul limite esterno delle fasce, ad imitazione di pietre preziose, e contenenti all’interno una cornice più piccola con fascia, a contorno spezzato, che inquadra la parte superiore dei personaggi. I vuoti tra i singoli riquadri sono decorati da tralci continui spiraliformi, oppure da rami di palme stilizzati.
Vale la pena notare che, inserita nella decorazione dell’archetto di collegamento delle due aule, appare la misteriosa immagine di uno strano personaggio la cui indecifrabile identificazione non può che alimentare quella fantasia popolare che troppo spesso viene trascurata nelle valutazioni delle opere d’arte. La scientifica disamina dei significati di ogni singola operazione pittorica si arresta di fronte all’imprevedibile genialità dell’artista quando egli si esprime con metodi anticlassici, uscendo dai canoni dogmatici e rivolgendosi allo scherzo, al gioco ed in fin dei conti alla libertà di espressione.
Il personaggio dell’archetto è apparentemente fuori di ogni schema di logica narrazione; soltanto scavando nel magico mondo della fantasia popolare si potrà un giorno capire se si tratta di un monaco orante, male rappresentato, o di uno gnomo che grottescamente si aggira nei meandri di S. Maria delle Grotte a tenere vivi gli spiriti dei cinquecento monaci di S. Vincenzo che, con la vita, nell’ottobre dell’881, pagarono l’attaccamento al loro monastero.
Altre immagini in
http://www.francovalente.it/2011/03/20/immagini-straordinarie-di-santi-dalla-madonna-delle-grotte-di-rocchetta/
Note
(1) Le vicende storiche di questo territorio sono state ricavate in gran parte dal Chronicon Vulturnense del monaco Giovanni. Per le nostre consultazioni ci siamo avvalsi della edizione V. FEDERICI, Chronicon Vulturnense del Monaco Giovanni, in Fonti per la storia d’Italia, Roma 1925 e 1940.
(2) Sulla storia del territorio Volturnense e sulla sua organizzazione si possono consultare numerosi saggi e tra essi:
A. PANTONI, La chiesa e gli edifici del Monastero di San Vincenzo al Volturno, Montecassino 1980.
AA. VV.,Una grande abbazia alto-medievale nel Molise: S. Vincenzo al Volturno Atti del convegno di Venafro, maggio 1982), Montecassino 1985.
AA. VV., San Vincenzo al Volturno 1 – Archeological monographs of the British School at Rome, a cura di Richard Hodges, Londra 1993.
M. DEL TREPPO, Longobardi, Franchi e Papato in due secoli di storia volturnense, in Archivio Storico per le Provincie Napoletane, n. 5, XXXIV (!955) pp. 37-66.
M. DEL TREPPO, La vita economica e sociale in una grande abbazia del Mezzogiorno, in Archivio Storico per le Provincie Napoletane, n. 5, XXXV (1956), pp. 31-100.
O. BALDACCI, I possessi maggiori del Monastero di S. Vincenzo al Volturno nel secolo VIII, in Abruzzo, rivista dell’Istituto di Studi Abruzzesi, a. XIV (1976).
N. F. FARAGLIA, Saggio di corografia abruzzese medioevale, in Archivio Storico per le Provincie Napoletane – XVI (1891).
E. GATTOLA, La Terra Sancti Vincencii, a cura di F. Avagliano, in Almanacco del Molise 1981, Campobasso 1980.
F. VALENTE, Il territorio di S. Vincenzo ed il castello di Cerro al Volturno, in Almanacco del Molise 1983, Campobasso 1982.
O. FRAIA-FRANGIPANE, La terra di S. Vincenzo a Volturno a cura di F. Avagliano,Montecassino 1982.
(3) Sui movimenti dei pellegrini nel medioevo consulta:
J SUMPTION, Monaci, santuari, pellegrini – La religione nel Medioevo, Roma 1975.
R. OURSEL, Pellegrini nel Medioevo, Milano 1979.
(4) Durante i lavori di restauro condotti dalla Soprintendenza ai Monumenti di Campobasso sono state scoperte testimonianze di notevole interesse, alcune risalenti all’epoca sannitica, ma ad esse non è stata attribuita la giusta importanza per cui non se ne è garantita la conservazione e sono andate disperse.
(5) A. PANTONI, La chiesa e gli edifici del Monastero di S. Vincenzo al Volturno, Montecassino 1980. L’opera è fondamentale per la comprensione delle vicende architettoniche dei monumenti di S. Vincenzo per le numerose notazioni ricavate dal Pantoni sul territorio durante e dopo l’opera di ricostruzione della basilica principale da egli personalmente curata.
(6) I. CARACCIOLO, Acta visitationis generalis insignis Abbatiae nullius S. Vincentii, prope fontis Volturni – Anno I697 – Archivio di Montecassino.
(7) O. FRAIA-FRANGIPANE, La terra di S. Vincenzo al Volturno, a cura di Faustino Avagliano, p. 28, Montecassino 1982.
(8) L’articolo fu pubblicato nel 1871 dalla Gazzetta della Provincia di Molise (n. 16). G.MASCIOTTA, Il Molise dalle origini ai nostri gioni, Vol. III, ne estrae integralmente il testo senza aggiungere notizie di rilievo.
(9) Questa singolare conformazione gessosa non ha una vetustà notevole, né in natura si trova in banchi molto consistenti. Spesso,infatti,nella stessa massa vi compaiono detriti di mattoni cotti, come può ricavarsi da alcuni blocchi esistenti nei pressi di Rocchetta Nuova, che, tuttavia, una volta selezionati e lavorati, forniscono materiale con ricche e calde striature che vanno dall’ocra al marrone.
(10) A. PANTONI, La Chiesa e gli edifici ecc., cit..
(11) G.V. CIARLANTI, Memorie Historiche del Sannio, Isernia 1644.
(12) L. CELLUCCI, Le pitture Benedettine di Santa Maria delle Grotte presso le sorgenti del Volturno, in L’arte XVI (1913), Fasc. 1, pp. 32-49.
Altri autori si sono occupati degli affreschi di S. Maria delle Grotte e tra essi:
H.W. SCHULZ, Denkmaler der Kunst des Mittelalters in Unteritalien, Dresda 1860.
E. BERTAUX, L’art dans l’Italie Meridionale, Vol. I, Parigi 1904.
P. TOESCA, Reliquie d’arte della Badia di S. Vincenzo al Volturno in Bollettino dell’Istituto Storico Italiano, n. XXV (1904).
A. TROMBETTA, L’arte medioevale nel Molise, Campobasso 1971.
(13) Per i brani evangelici è stato utilizzato Il Vangelo, Ed. Regnum Dei, Milano 1971.
(14) AA. VV. Bibliotheca Sanctorum, Città Nuova Editrice. L’opera è stata molto utile per la ricognizione iconografica nelle singole rappresentazioni.
(15) M. ALPATOV, Le icone russe,Torino 1976.
(16) Chronicon Vulturnense, cit., ed. Federici. vol.I. pag.11






















Lascia un commento